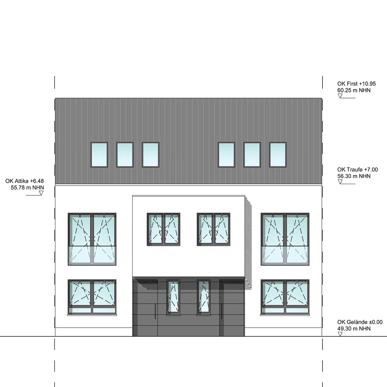
Köln-Weiß
In 2020 Erwerb eines Grundstückes mit einer sanierungsbedürftigen Doppelhaushälfte. Geplant ist der Abriß und die Realisierung einer modernen Doppelhaushälfte in zeitgenössischem Design, die nach WEG in 2 Einheiten vertikal aufgeteilt ist.
back-to-top